MENU
  • Loading ...
  • Loading ...

Towers Of Chevron - Private Apartment

Surfers Paradise, QLD

Address: 23 Ferny Avenue Unit 2027, Surfers Paradise QLD 4217

    About Towers Of Chevron - Private Apartment

    Book Direct with the Owner at Towers Of Chevron - Private Apartment in Surfers Paradise with Taree Accommodation for all your holiday and travel needs.

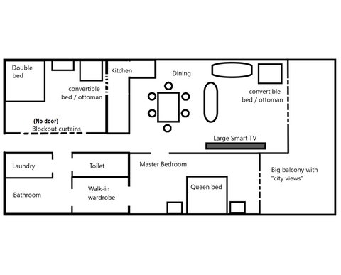
    Located in Gold Coast, Towers of Chevron - Private Apartment provides accommodations with free WiFi, air conditioning, a restaurant and access to a garden with an outdoor pool. Featuring free private parking, the apartment is in an area where guests can engage in activities such as hiking and fishing. The apartment has 2 bedrooms, 1 bathroom, a flat-screen TV, a dining area, a fully equipped kitchen, and a patio with city views. The apartment offers guests a wellness area with a fitness center, a sauna and an indoor pool. A casino and a children's playground, are available at Towers of Chevron - Private Apartment, while guests can also relax on the sun terrace. Infinity Maze is a 4-minute walk from the accommodation, while SkyPoint Observation Deck is 0.7 miles away. The nearest airport is Gold Coast, 14 miles from Towers of Chevron - Private Apartment, and the property offers a paid airport shuttle service.
     

    Facebook

    Booking.com

    Towers Of Chevron - Private Apartment

    Taree Accommodation welcomes Towers Of Chevron - Private Apartment, the ideal Surfers Paradise QLD Holiday outlet for all the family to enjoy. We have made sure that we have thought of everything you would expect from your vacation with many features, click on the email or phone now button to get in touch with the owner.

    Is Towers Of Chevron - Private Apartment in Surfers Paradise your property on Taree Accommodation, please claim your listing and subscribe to pay no commission plus update your contact details to receive your phone calls and emails from your clients.


    Towers Of Chevron - Private Apartment

    Click the below to email this business

    Email Business

    Thank you!

    Your enquiry has been submitted

    Please fill out the form below to send an enquiry to this business

    Taree Accommodation displayed beautifully on multiple devices

    Unlock the Full Potential of Your Business with
    Taree Accommodation

    • Rectify inaccuracies in your listing via Taree Accommodation
    • Turn on the Call Now Button to directly receive customer calls.
    • Enable the Visit Website Button to drive a continuous flow of traffic to your site.
    • Enable Email Button to effortlessly gather your clients' email addresses.
    Claiming or adding your listing not only grants you access to missed call alerts and client emails via Taree Accommodation but also connects you with over 500 partner sites. This strategic move amplifies your client engagement and boosts your visibility on Google, social media, and within the QLD Tourism ecosystem

    copyright © 2026 Taree Accommodation.   All rights reserved.

    A B C D E F G H I J K L M N O P Q R S T U V W X Y Z